Patriki

2025 - 2026

under construction

Moscow

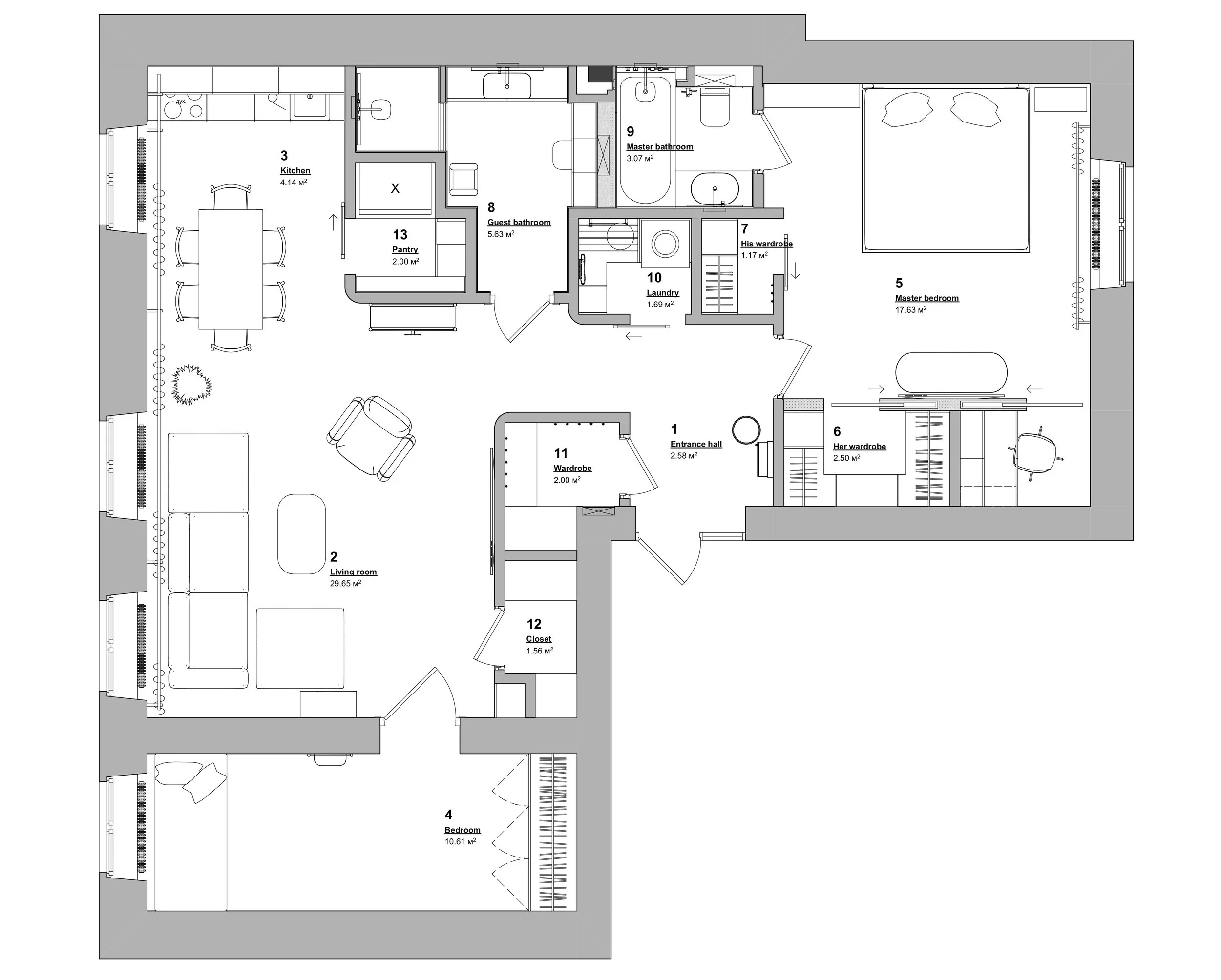
The 90-square-meter apartment occupies the first floor of a historic Moscow building. Originally designed in 2024 (you can find the initial project under the title New Radost), the project has found a new life in 2026 — this time created not for the owners themselves, but for their grown children: a young couple with a baby. We gently reworked the layout and refreshed the interiors to reflect their story. Now under construction.